Ferienwohnung “Südseit’n”

Ferienwohnung “Südseit’n”

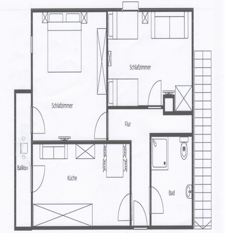
Unsere Ferienwohnung „Südseit’n“ bietet Platz für bis zu vier Personen und verbindet ländlichen Charme mit behaglichem 4-Sterne-Komfort. Zwei getrennte Schlafzimmer – eines mit Doppelbett, eines mit zwei Einzelbetten – jeweils mit eigenem TV, sorgen für entspannte Nächte. Die helle Wohnküche mit Spülmaschine lädt zum gemeinsamen Kochen ein, das moderne Bad mit Dusche/WC rundet den Komfort ab. Auf dem sonnigen Südbalkon genießen Sie einen herrlichen Blick auf Natur und Berge. Freies WLAN inklusive – Hunde auf Anfrage willkommen.

Preis ab 7 Nächten: 100 € / Nacht

Verfügbarkeit

Belegungskalender


Belegungskalender
Scholderhof

Write a review